Beschrijving

Fantastische kans voor starters: dit geweldige volledig gerenoveerde (2025) 3 kamer top appartement in Den Haag. Dit schitterende appartement wordt geleverd inclusief 6 maanden verbouwings garantie. 
Dit appartement heeft alles wat je zoekt!

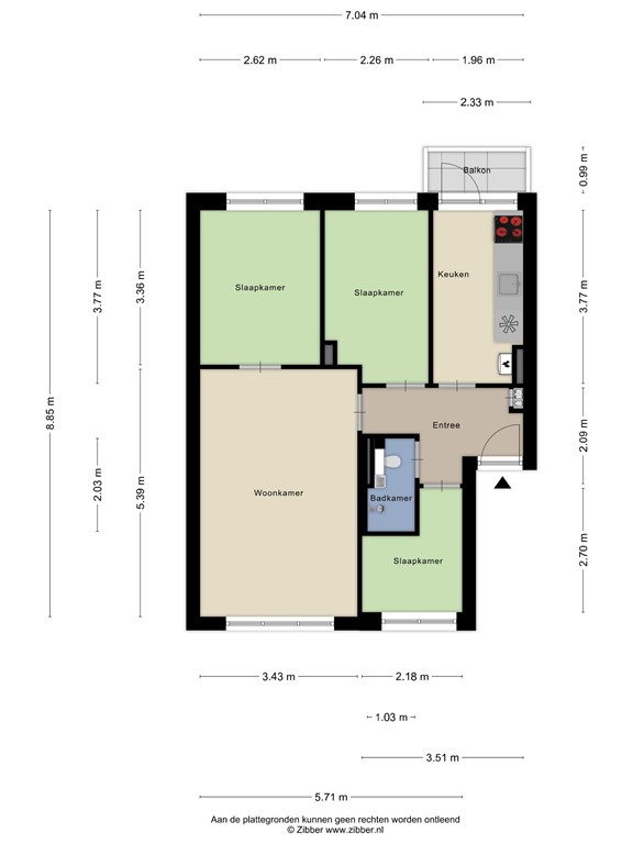
Dit pareltje beschikt over een energielabel A, waardoor je niet alleen geniet van een stijlvolle woning maar ook van een duurzame levensstijl. Met een oppervlakte van ca. 61 m2 biedt dit appartement genoeg ruimte voor jou om je thuis te voelen. Met maar liefst 2 slaapkamers én een extra studeer/werk/kastenkamer, heb je hier alle vrijheid om de ruimtes zo in te richten zoals jij dat wilt. Dit appartement is lekker normaal, en dat is juist zo bijzonder. Geen gedoe, gewoon een fijne plek om thuis te komen na een lange dag. 

De Lyonnetstraat is gelegen in een levendige buurt waar genoeg te beleven valt. Het Laakkwartier is een opkomende buurt waar van alles te beleven valt. Het appartement ideaal gelegen, nabij winkels op het Lorentzplein., het Haagse stadscentrum. Meerder tram- en bushaltes zorgen voor snelle verbindingen naar andere delen van de stad, binnen enkele minuten sta je op het Station Hollands Spoor of op Centraal Station van Den Haag. Bovendien op 25 minuten fietsafstand van het strand. Ook de uitvalswegen (de snelwegen A12 en A4)  zijn binnen 10  minuten bereikbaar. Het is een plek waar jij je direct thuis zult voelen en waar je nieuwe herinneringen kunt creëren.

Als starter onder de 35 jaar profiteer je van een uniek voordeel: géén overdrachtsbelasting bij aankoop van deze woning!

Ben je op zoek naar een ideale start op de woningmarkt? Laat deze buitenkans niet aan je voorbijgaan en plan snel een bezichtiging. Voor je het weet, zit jij op de bank van dit instapklare pronkstuk en kun je niet wachten om het 'thuis' te noemen. Welkom in je nieuwe stulpje!

Stap binnen in de gloednieuwe keuken met alle moderne voorzieningen die je nodig hebt. Bereid de lekkerste maaltijden in een handomdraai! De nieuwe badkamer is voorzien van een heerlijke inloopdouche en een hangend toilet voor extra comfort. Alles is tot in de puntjes verzorgd, zodat jij alleen nog maar hoeft te genieten van alle luxe die dit appartement te bieden heeft.

Het appartement beschikt tevens over een balkon aan de achterzijde waar je kunt genieten van het buitenleven en heerlijk kunt ontspannen na een lange dag. Of je nu je ochtendkoffie wilt drinken in de frisse lucht of 's avonds wilt ontspannen met een goed boek, het balkon biedt de perfecte plek.

Details:
- Bouwjaar: circa 1923
- Gelegen op eigen grond
- Gebruiksoppervlakte wonen: 57,40 m2
- Gebruiksoppervlakte overige inpandige ruimte: 0,00 m2
- Gebouw gebonden buitenruimte: 2,30 m2
- Externe bergruimte: 0,00 m2
- Bruto vloeroppervlak: 69,00 m2
- Bruto inhoud woning: 189,62 m3
- Meetrapport aanwezig conform branche brede meetinstructie
- Energielabel: A (geldig tot 31-01-2035)
- 6 maanden verbouw garantie
- Aantal kamers : 3  (waaronder 2 slaapkamers + 1 studeer/werk/kastenkamer)
- Badkamers: 1 
- Toiletten: 1
- Balkon: Ja
- Meterkast met 12 elektra groepen met een 3 aardlekschakelaars
- De woning wordt verwarmd door middel van een centrale verwarming (2025) Intergas HRE 24/18 A CW3
- Gehele appartement is voorzien kunststof kozijnen met voorzien van dubbele beglazing 
- Gehele appartement is afgewerkt met een nette laminaatvloer
- Badkamer met inloopdouche, wastafel en hangend toilet.
- VvE bijdrage van thans €30,00 euro per maand (appartement) 
- Collectieve onderhoud en opstalverzekering 
- MJOP aanwezig 
- VvE is ingeschreven bij KvK 
-  Reservefonds per 14 november 2024 groot onderhoud ca. € 5355,-
 - 1 / 3e aandeel in de Vereniging van Eigenaren Lyonnetstraat 27, 35, 35 te ‘s-Gravenhage
- Gezien het bouwjaar zal er een ouderdom en materialenclausule worden opgenomen in de koopakte
- In de koopakte zal tevens een “niet-zelf bewoond clausule” (verkoper heeft de woning zelf niet bewoond) worden opgenomen
- Notariskeuze binnen gebied Haaglanden voorbehouden aan koper;
- Overdracht op korte termijn mogelijk

Bijzonderheden
Biedingen welke worden gedaan zonder de woning te hebben gezien, worden mede vanwege de Wet WWFT, niet in behandeling genomen

Bijlagen (op te vragen bij de verkopende Vastgoed Nederland makelaar) 
- Vragenlijst
- Lijst van zaken
- Ouderdoms- en materialen clausule van toepassing,
- Niet bewonersclausule is van toepassing
- Verkoopvoorwaarden op te vragen bij verkopende makelaar

Interesse in dit huis? Schakel direct uw eigen Vastgoed Nederland-aankoopmakelaar in. 

Bovenstaande informatie is door ons met de hoogst nodige zorgvuldigheid samengesteld. Door ons wordt echter geen enkele aansprakelijkheid aanvaard voor enige onvolledigheid, onjuistheid of anderszins, dan wel de gevolgen daarvan. Alle opgegeven maten en oppervlakten zijn indicatief. De woning is gemeten met gebruikmaking van de Meetinstructie, die is gebaseerd op de normen zoals vastgelegd in branche brede meetinstructie. De Meetinstructie is bedoeld om een meer eenduidige manier van meten toe te passen voor het geven van een indicatie van gebruiksoppervlakte. De Meetinstructie sluit verschillen in meetuitkomsten niet volledig uit, door bijvoorbeeld interpretatieverschillen, afrondingen of beperkingen bij het uitvoeren van de meting. Hoewel wij de woning zorgvuldig hebben opgemeten, wordt noch door ons kantoor, noch door de verkoper enige aansprakelijkheid aanvaard voor afwijkingen in de opgegeven maten. Koper wordt in de gelegenheid gesteld om de opgegeven maten te (laten) controleren

Kenmerken