Beschrijving

Geheel gerenoveerd (2020) ruim (102 m²), licht  4-kamer gemeubileerd  hoek-appartement met “panoramisch” uitzicht en zonnig balkon (ZW) in Waldeck op de grens met Bohemen, Winkelcentrum Waldeck, Landgoed Meer en Bos, strand en zee (badplaats Kijkduin), sportverenigingen, waaronder golfclub Ockenburgh, diverse scholen, waaronder The International School en openbaar vervoer (Randstad Rail 3) zijn op ‘loop’ afstand bereikbaar. Tevens zijn de uitvalswegen richting de snelwegen A4/A12/A13 eenvoudig bereikbaar. Het appartement is zonder ‘traptreden’ met lift bereikbaar. 

Kortom: Dit prachtige appartement is zeker een bezichtiging waard!   

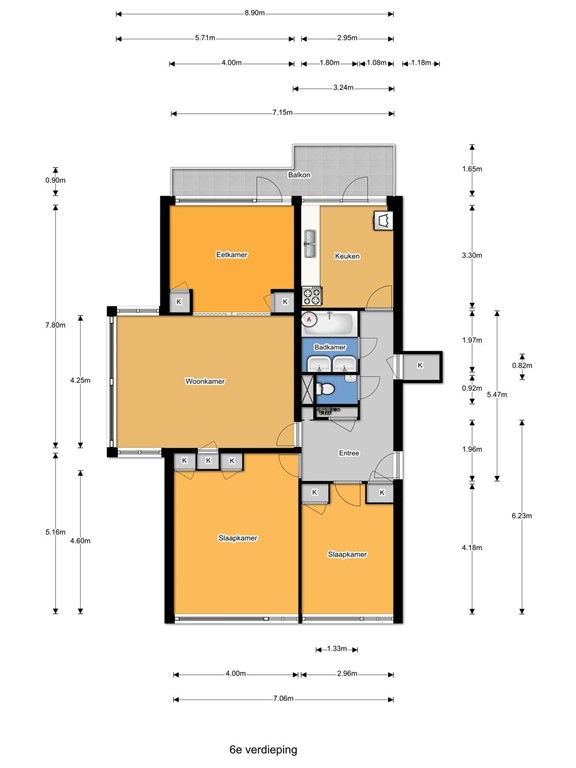
Indeling: Gesloten portiek met bellen- en brievenbussentableau. Via trap of lift naar de 6e verdieping. Entree, ruime hal met gang, zeer lichte L-vormige woon-eetkamer  met 3 vaste kasten en een deur naar een uitermate zonnig balkon, 2 ruime slaapkamers aan de voorzijde respectievelijk ca. 4.60 x 4.00 met 2 vaste kasten en ca. 4.18 x 2.96 met 2 vaste kasten met 2 vaste kasten, extra berging en een aansluiting voor een wastafel, luxe keuken (zwart uitgevoerd met inbouw apparatuur waaronder 5-pits gasfornuis met wok brander, inbouw combi oven, design afzuigkap, inbouw koel/vriescombinatie, vaatwasser en wasmachine en een deur naar het balkon, inpandige volledig betegelde badkamer met douchecabine, wastafel en opstelling badkamerboiler met een inhoud van 80 liter , separaat zwevend toilet met een fonteintje, inpandige berging, meterkast, garderobekast en vaste kast op de gang. Berging op straatniveau.

Afmetingen: 
Woon- eetkamer ca. 5.71 x 4.25 en ca. 4.00 x 3.30 
Slaapkamer I ca. 4.60 x 4.00 
Slaapkamer II ca. 4.18 x 2.96 
Keuken ca. 3.30 x 2.96 
Badkamer ca. 1.97 x 1.97 
Balkon ca. 7.15 x 1.65 0.90 
Berging inpandig ca. 1.18 x 0.82 
Berging ca. 3.07 x 2.65 

Details:
- Huurprijs per betaalperiode van een  kalender maand:
  Huurprijs (kaal):                                                                                              € 2.400,00
  Vast bedrag voor stoffering, afwerking, meubilering  en apparatuur:  €    200,00
  Voorschot stookkosten:                                                                                €    200,00 +
  Totale huurprijs per kalender maand:                                                        € 2.800,00 exclusief gas, water, elektriciteit, interne, lokale belastingen

- Bouwjaar circa 1972
- Woonoppervlakte circa 102 m2
- Totale inhoud circa 336 m³ 
- Exact gemeten volgens de branche brede meetinstructie (Meetrapport conform NEN2580)
- Energie label: C
- Het appartement wordt  gemeubileerd opgeleverd
- De woning wordt verwarmd door middel van blokverwarming
- Warm water middels een badkamerboiler met een inhoud van 80 liter en een keukenboiler met een inhoud van 10 liter
- De kozijnen zijn uitgevoerd in hout met dubbel glas
- Het gehele appartement is uitgevoerd met een laminaatvloer
- De woonkamer/eetkamer is luxe gemeubileerd met o.a. zonwering aan erkerzijde en voorzien van 65"led 4K smart televisie
- De elektrische installatie bestaat o.a. uit 5 groepen, een aardlekschakelaar en een normaal- en laagtariefmeter
- Luxe keuken met inbouw apparatuur
- Volledig betegelde badkamer met douchecabine, wastafel en radiator
- Balkon aanwezig
- Privé berging in de onderbouw
- Gratis parkeren op de openbare weg en op het gemeenschappelijke parkeerterrein achter het gebouw (geen eigen parkeerplaats)
- Beschikbaar per direct

Huurvoorwaarden:
- U moet minimaal een (gezamenlijk) netto inkomen aantonen dat gelijk is aan 2.5 x de totale huurprijs
- Niet beschikbaar voor studenten / woningdelers
- 1 maand waarborg te betalen voor aanvang huurcontract
- Het is niet toegestaan te roken en er mogen geen veranderingen aan de woning worden aangebracht
- Huisdieren zijn niet toegestaan, blindengeleidehonden en andere assistentiehonden wel zijn toegestaan. 
- Er worden geen uitspraken gedaan over het toewijzingsbeleid.

Om in aanmerking te komen voor de aangeboden woning, dient de aanvrager(s) de onderstaande documenten aan te leveren:
- Kopie geldig paspoort / ID-kaart / werkvergunning / visum 
- Kopie recente werkgeversverklaring(en) niet ouder dan 1 maand 
- Kopie 3 recente opeenvolgende salarisstroken van aanvrager(s) 
- Kopie 3 recente opeenvolgende bankafschriften (digitaal is toegestaan) waarop bijschrijving van het salaris zichtbaar is
- Verklaring van verhuurder/beheerder/eigenaar/hypotheekhouder van huidige woning met bevestiging van goed betalingsgedrag
- Uittreksel uit de BRP (basisregistratie personen) van uw gemeente

In geval van echtscheiding, aanvullend:
- Echtscheidingsconvenant
- Kopie van alle alimentatiebetalingen, indien van toepassing

Voor zelfstandigen (ZZP), directeur/aandeelhouders aanvullend:
- Recente accountants verklaring met balans en winst- en verliesrekening van de afgelopen 2 jaar, goedgekeurd door gecertificeerd accountant. (Conceptversie is niet voldoende)
- Kolommen balans winst/verlies lopende boekjaar
- Recent uittreksel van de Kamer van Koophandel (niet ouder dan 1 maand)
- Definitieve aanslagen IB 60 van de afgelopen 2 jaar

Deze informatie is door ons met de nodige zorgvuldigheid samengesteld. U kunt aan deze verhuur-beschrijving geen rechten ontlenen. Onzerzijds wordt echter geen enkele aansprakelijkheid aanvaard voor enige onvolledigheid, onjuistheid of anderszins, dan wel de gevolgen daarvan. Alle opgegeven maten en oppervlakten zijn indicatief.

Kenmerken