| Adres: | De Savornin Lohmanlaan 77, 2566 AJ Den Haag |
| Prijs | € 2.950,- /mnd |
| Type object | Appartement, maisonnette, Triplex |
| Woonoppervlakte | 125 m² |
| Aanvaarding | Direct |
| Status | Nieuw in verhuur |
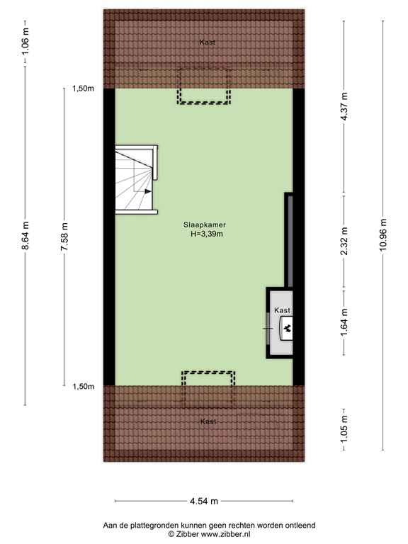
Heerlijk gemeubileerd en gerenoveerd 3 laags appartement van ca. 125 m2 gelegen op de derde woonlaag van het monumentale complex aan de Bosjes van Pex met een vrij uitzicht aan voor- en achterzijde, fijne lay-out van het appartement met veel lichtinval, twee balkons en 4 slaapkamers. Deze drie-laagse woning heeft een ruim, vrij uitzicht over Bohemen en de gemeenschappelijke tuin biedt u groen, rust en ruimte. Het appartement is gelegen op loopafstand van Landgoed Meer & Bos, de Bosjes van Pex met de diverse sportfaciliteiten zoals tennis, voetbal, hockey en handbal, het openbaar vervoer (bus 24 en Randstadrail 3). Nabij winkelcentrum “De Savornin Lohmanplein” en winkelcentrum “Alphons Diepenbrockhof en de winkels in de Vlierboom- en Appelstraat. Eveneens in de nabijheid van de Europese en International School of The Hague, diverse uitvalswegen via Westlandroute en Hubertustunnel en natuurlijk de vernieuwde badplaats Kijkduin! INDELING: Centrale entree met een afgesloten entree met brievenbussen- en bellentableau. Royaal trappenhuis naar de 3e verdieping. 1e WOONLAAG: Entree tot het appartement via een galerij met een vrij uitzicht over de groenstrook. Hal met een vaste kast met een meterkast, trapopgang naar de 4e verdieping en een separaat toilet voorzien van een hangcloset met een inbouwreservoir. De keuken is aan de voorzijde van het appartement gelegen in hoekopstelling. De keuken is voorzien van een inbouw gaskookplaat, vlakscherm afzuigkap, inbouw oven, inbouw koel-/vriescombinatie, inbouw vaatwasser en een handige ruime nis voor het opslaan van keuken proviand. Aan de achterzijde van het appartement is de woonkamer gelegen met een vaste kast en openslaande deuren naar een prettig balkon op het Zuidoosten met een leuk uitzicht over de groenstrook. Gezien de zonligging ook heerlijk in de schaduw te vertoeven. 2e WOONLAAG: Overloop, ruime ouderslaapkamer aan de voorzijde van het appartement met een handige kledingkast. Tussenliggende badkamer volledig betegelde badkamer met inloop douche, wastafelmeubel en een 2e hangcloset met een inbouwreservoir. 1e voorslaapkamer met vaste kast en grenzend aan het balkon, 2e voorslaapkamer. 3e WOONLAAG: Zolderverdieping: hier valt gelijk het lichtinval op door de 2 grote dakramen. Op dit moment ingedeeld als een open slaapkamer met een studeer-/ thuiswerkplek. Beide zijden van de verdieping zijn afgewerkt met schuifdeuren in de knieschotten waardoor er ruim voldoen opbergruimte is. Tevens bevindt zich hierachter de opstelplaats voor de wasmachine en droger. Vaste kast met opstelplaats van de cv-ketel. Details: - Huurprijs per betaalperiode van een kalender maand: Huurprijs (kale) inclusief internet: € 2.950,00 Vaste vergoeding voor stoffering, meubilering en apparatuur: € 350,00 Totale huurprijs per kalender maand: € 3.200,00 exclusief gas, water, elektriciteit, internet belastingen - Woonoppervlakte: ca. 125m² - Gebouw gebonden buitenruimtes: ca. 7m2 - Inhoud: ca. 409m³ - Bouwjaar: ca. 1956 - Oplevering: gemeubileerd - Aantal kamers: 5 - Aantal slaapkamers: 4 - Elektra 6 groepen met aardlekschakelaar - Moderne keuken voorzien inbouwapparatuur - Ruime lichte woonkamer met toegang tot balkon gelegen op het Zuidoosten - Eerste woonlaag voorzien van houten vloerdelen, tweede en derde woonlaag voorzien van laminaat. - Het gehele appartement is voorzien van kunststofkozijnen met dubbel glas. - De gehele woning is voorzien van netwerkaansluitingen en heeft alsmede een voorbereiding voor glasvezelinternet - Verwarming en warmwatervoorziening middels combiketel - De woning is gelegen in een gemeentelijk monument. - Beschikbaar per direct Huurvoorwaarden: - U moet minimaal een (gezamenlijk) netto inkomen aantonen dat gelijk is aan 2.5 x de totale huurprijs - Niet beschikbaar voor studenten / woningdelers - 1 maand waarborg te betalen voor aanvang huurcontract - Het is niet toegestaan te roken en er mogen geen veranderingen aan de woning worden aangebracht - Huisdieren zijn niet toegestaan, blindengeleidehonden en andere assistentiehonden wel zijn toegestaan. - Er worden geen uitspraken gedaan over het toewijzingsbeleid. Om in aanmerking te komen voor de aangeboden woning, dient u de volgende documenten te overleggen: Personen van aanvrager en eventuele andere aanvrager: - Kopie geldig paspoort / ID kaart van aanvrager en eventuele andere aanvrager (Gelieve uw BSN door te strepen); - Recente werkgeversverklaring(en) niet ouder dan 1 maand; - Kopie van 3 recente opeenvolgende salarisstroken van de aanvrager (Gelieve uw BSN door te strepen); - Kopie van 3 recente opeenvolgende bankafschriften (digitaal toegestaan) waarop de betaling van het salaris zichtbaar is; - Definitieve IB jaaropgaaf van de belastingdienst van het afgelopen jaar; - Kopie van bankpas (voorzijde); - Verklaring van verhuurder / beheerder / eigenaar / hypotheekhouder van huidige woning met bevestiging van goed betalingsverleden; - Uittreksel uit de BRP (basisregistratie personen) van uw gemeente; In geval van echtscheiding - Echtscheidingsconvenant; - Kopie eventuele alimentatie; Voor zelfstandigen (ZZP), directeur/aandeelhouders aanvullend: - Recente accountants verklaring met balans en winst- en verliesrekening van de afgelopen 2 jaar, goedgekeurd door gecertificeerd accountant. (Conceptversie is niet voldoende); - Kolommen balans winst/verlies lopend jaar; - Recent uittreksel van de Kamer van Koophandel (niet ouder dan 1 maand); - Definitieve aanslagen IB 60 van de afgelopen 2 jaar. Deze informatie is door ons met de nodige zorgvuldigheid samengesteld. U kunt aan deze verhuur-beschrijving geen rechten ontlenen. Onzerzijds wordt echter geen enkele aansprakelijkheid aanvaard voor enige onvolledigheid, onjuistheid of anderszins, dan wel de gevolgen daarvan. Alle opgegeven maten en oppervlakten zijn indicatief.
| Referentienummer | PSG477 |
| Huurprijs | € 2.950,- per maand (geïndexeerd) |
| Borg | € 6.400,- |
| Servicekosten | € 350,- per maand |
| Inrichting | Ja |
| Inrichting | Gemeubileerd |
| Status | Nieuw in verhuur |
| Aanvaarding | Direct |
| Aangeboden sinds | Zondag 23 november 2025 |
| Type object | Appartement, maisonnette, Triplex |
| Woonlaag | 3e woonlaag |
| Soort bouw | Bestaande bouw |
| Bouwperiode | 1956 |
| Dakbedekking | Dakpannen |
| Type dak | Tentdak |
| Keurmerken | Energie prestatie advies |
| Isolatievormen | Dakisolatie Dubbel glas HR-glas Volledig geïsoleerd |
| Woonoppervlakte | 125 m² |
| Woonkameroppervlakte | 23,34 m² |
| Keukenoppervlakte | 6,78 m² |
| Inhoud | 410 m³ |
| Oppervlakte gebouwgebonden buitenruimte | 7 m² |
| Balkonoppervlakte | 7,19 m² |
| Aantal bouwlagen | 3 |
| Aantal kamers | 5 (waarvan 4 slaapkamers) |
| Aantal badkamers | 1 (en 1 apart toilet) |
| Ligging | Aan rustige weg Dichtbij openbaar vervoer In bosrijke omgeving In woonwijk Nabij school Nabij winkelcentrum Vrij uitzicht |
| Energie-index | 2,5 |
| CV ketel | HR+ |
| Warmtebron | Gas |
| Bouwjaar | 2024 |
| Combiketel | Ja |
| Eigendom | Eigendom |
| Warm water | CV-ketel |
| Verwarmingssysteem | Centrale verwarming |
| Ventilatie methode | Mechanische ventilatie Natuurlijke ventilatie |
| Badkamervoorzieningen | Douche Dubbele wastafel Inloopdouche Toilet Wastafel Wastafelmeubel |
| Heeft een balkon | Ja |
| Heeft kabel-tv | Ja |
| Heeft een dakraam | Ja |
| Heeft ventilatie | Ja |
| Ingeschreven bij de KvK | Ja |
| Jaarlijkse vergadering | Ja |
| Reservefonds | Ja |
| Meer jaren onderhoudsplan | Ja |
| Onderhoudsverwachting | Ja |
| Opstal verzekering | Ja |