| Prijs | € 800,- /mnd |
| Type object | Kantoor |
| Totale VVO | 65 m² |
| In units vanaf | 65 m² |
| Aanvaarding | Direct |
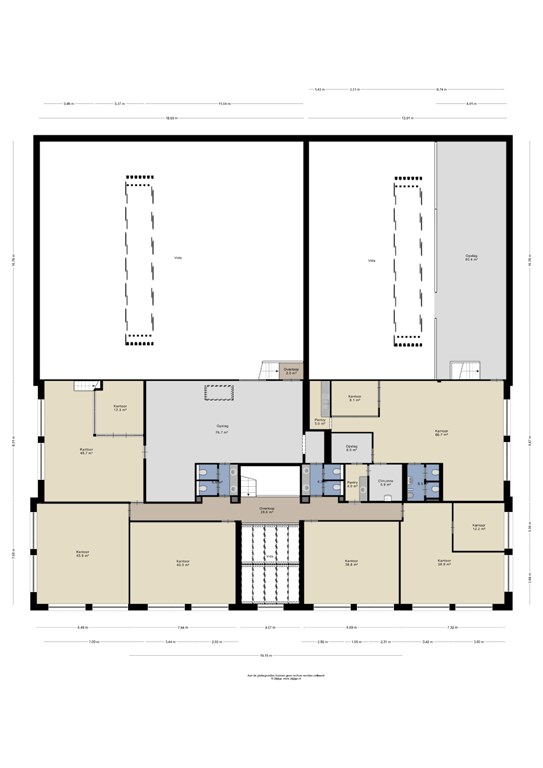
Adres: Moezel 19A (kantoor unit II) (2491 CV) Den Haag. Algemeen: Het betreft hier een kantoorruimte tevens te gebruiken als atelierruimte / ontwerpstudio gelegen op de 1e verdieping in een bedrijfsverzamelgebouw op het bedrijventerrein "Forepark" Het bedrijfsverzamelgebouw beschikt over een energielabel A+. Het bedrijventerrein 'Forepark' is een relatief jong bedrijventerrein dat inmiddels grote bekendheid heeft verworven. Het ‘Forepark’ waar een diversiteit aan nationale en internationale bedrijven zich hebben gevestigd, zoals De Persgroep Nederland, Sligro, autodealers van de diverse bekende merken BMW, Mercedes, Saab, Volkswagen/Audi, ligt direct nabij het Prins Clausplein tussen de A-4 (Den Haag- Amsterdam v.v.), A-13 (Den Haag- Rotterdam v.v.) en de A-12 (Den Haag-Utrecht v.v.) en is derhalve perfect gelegen ten aanzien van de aan- en afvoer van goederen. Ook per openbaar vervoer is het ‘Forepark’ uitstekend bereikbaar middels een tweetal busverbindingen naar de in de omgeving gelegen NS-stations (RandstadRail). Tijdens de ochtend- en avondspits rijdt er een sneldienst rechtstreeks naar Den Haag Centraal Station (reistijd 10 minuten). Indeling: Begane grond: entree, ruime gemeenschappelijke centrale ontvangstruimte/hal, gang, 2x dubbele toilet groep met dubbele wasbak. 1e verdieping: ruime gemeenschappelijke overloop, 2x dubbele toilet groep met dubbele wasbak, pantry voorzien van keukenblok, was/spoelbak, combi-oven, vaatwasser en voldoende opbergruimte. Kadastrale gegevens: Gemeente: 's-Gravenhage Sectie: BD Code: 88 Kavelnummer: 2829 Grootte: 20 a en 82 ca Grootte: 1.499 m2 (gedeeltelijk) Energielabel: Het kantoorgebouw beschikt over energielabel A+. Parkeren: - Gratis openbaar parkeren aan de straatzijde. Metrage: Dee beschikbare oppervlakte van deze unit bedraagt totaal ca. 65m² v.v.o. (incl. toebedeling algemene ruimte) Genoemde metrage is gemeten volgens de NEN 2580 meetinstructie. Opleveringsniveau: De kantoorruimte wordt leeg en bezemschoon opgeleverd met onder andere de volgende voorzieningen: * Representatief gemeenschappelijk entree; * Systeemplafonds, voorzien van LED- verlichtingsarmaturen (inclusief bewegingsmelder); * Verwarming d.m.v. infraroodverwarming; * Te openen ramen; * Alarminstallatie; * Brandslanghaspel; * 4 dubbele toiletgroepen; * Bestaande wandkabelgoten met elektra en databekabeling Cat.5; * Bestaande raambekleding; * Bestaande scheidingswanden; * Bestaande vloerbekleding; * Gedeelde pantry op 1e verdieping, voorzien van vaatwasser, close-in boiler en combi-oven; Huurrestrictie: Reclame uitingen op de gevel zijn niet toegestaan; Huurprijs: € 800,00 per maand exclusief servicekosten te vermeerderen met de wettelijk verschuldigde omzetbelasting. Servicekosten: Vaste prijs (exclusief jaarlijkse indexering) voor de servicekosten a € 350,00 per maand te vermeerderen met de wettelijk verschuldigde omzetbelasting. In de servicekosten zijn onder andere de volgende leveringen en diensten inbegrepen: - Waterverbruik inclusief vastrecht; - Elektraverbruik inclusief vastrecht van het gehuurde, algemene ruimten en installaties; - Levering glasvezel internetaansluiting; - Periodiek onderhoud en controle van E- en W-installaties alsmede het verhelpen van storingen; - Periodiek onderhoud en controle van hemelwaterafvoer, goten en daken; - Periodiek onderhoud en controle brandblussers/haspels; - Periodiek onderhoud en controle alarminstallatie; - Klein onderhoud algemene ruimten; - Tuinonderhoud en onderhoud van parkeerterrein en bestrating met een frequentie van 4 keer per 12 maanden; - Glasbewassing buitenzijde gebouw met een frequentie van 4 keer per 12 maanden; - Schoonmaak algemene ruimten met een frequentie van 2 keer per week; - Eventuele gemeentelijke heffingen ten behoeve van gebruiker; - Beheervergoeding 5%. Huurbetaling: Per kalendermaand vooruit te voldoen. Huurtermijn: Minimale huurtermijn 12 maanden Opzegtermijn: 6 maanden voor expiratie huurovereenkomst per aangetekend schrijven of bij deurwaardersexploot. Oplevering / Aanvaarding: Per direct beschikbaar. Huurprijs Indexering: Jaarlijks, per 01 januari op basis van de wijziging van het maandprijsindexcijfer volgens de consumentenprijsindex (CPI), reeks CPI alle huishoudens (2015=100), gepubliceerd door het Centraal Bureau voor de Statistiek (CBS). De volgens het bovenstaande geïndexeerde huurprijs zal nimmer lager zijn dan die van de voorafgaande huurjaren. BTW BELASTE VERHUUR: Verhuurder wenst te opteren voor een BTW belaste verhuur. Bij het vaststellen van de hoogte van de huurprijs is uitgangspunt geweest, dat huurder het gehuurde blijvend zal gebruiken voor ten minste het bij de wet vastgestelde percentage aan BTW-aftrekgerechtigde prestaties, waarbij kan worden geopteerd voor belaste (ver)huur. Indien de beschikking, op grond waarvan ontheffing is verleend van de vrijstelling tot het verschuldigd zijn van omzetbelasting over de huurprijs mocht komen te vervallen, omdat huurder het gehuurde niet (meer) gebruikt voor ten minste het bij de wet vastgestelde percentage aan aftrekgerechtigde prestaties, dan wordt de kale huurprijs met ingang van de datum waarop de optiebeschikking is vervallen, verhoogd met een nader door de eigenaar te bepalen percentage. Dit percentage is vastgesteld op 15%. Huurovereenkomst: Standaard huurovereenkomst kantoorruimte en andere bedrijfsruimte in de zin van artikel 7:230a BW, vastgesteld door de Raad van Onroerende Zaken (ROZ) in januari 2015. Van deze huurovereenkomst maken deel uit de algemene bepalingen kantoorruimte en andere bedrijfsruimte in de zin van artikel 7:230a BW, welke op 17 februari 2015 gedeponeerd zijn bij de griffie van de rechtbank Den Haag en aldaar zijn ingeschreven onder nummer 15/21. Waarborgsom: Bij ondertekening van de huurovereenkomst zal huurder een waarborgsom storten ter grootte 3 maanden bruto huur (exclusief servicekosten en wettelijk verschuldigde omzetbelasting). Bestemmingsplan: Forepark - A4-A12 vastgesteld d.d. 20-02-2014. Het object valt onder bestemmingscategorie 'Kantoor'. Voor het volledige bestemmingsplan kunt u terecht op: ruimtelijkeplannen.nl. Voorbehoud: - positief kredietinformatierapport ter beoordeling van verhuurder; - goedkeuring directie verhuurder.
| Referentienummer | PSG447 |
| Huurprijs | € 800,- per maand |
| Borg | € 2.400,- |
| Servicekosten | € 350,- per maand |
| Inrichting | Ja |
| Inrichting | Gestoffeerd |
| Aanvaarding | Direct |
| Aangeboden sinds | Dinsdag 25 maart 2025 |
| Laatste wijziging | Woensdag 24 december 2025 |
| Type object | Kantoor |
| Soort bouw | Bestaande bouw |
| Bouwperiode | 1998 |
| Keurmerken | Brandveiligheid |
| VVO | 65 m² |
| In units vanaf | 65 m² |
| Aantal bouwlagen | 1 |
| Ligging | Aan rustige weg Bedrijventerrein Dichtbij openbaar vervoer Kantorenpark Nabij snelweg Vrij uitzicht |
| Lokale voorzieningen | Bank op 2000 meter tot 3000 meter Geldautomaat op 2000 meter tot 3000 meter Restaurant binnen 500 meter Winkel op 2000 meter tot 3000 meter Supermarkt op 2000 meter tot 3000 meter |
| Bereikbaarheid | Bushalte binnen 500 meter Busknooppunt op 500 meter tot 1000 meter Metrohalte op 500 meter tot 1000 meter Treinstation op 500 meter tot 1000 meter Trein voorhalte op 500 meter tot 1000 meter Afrit van de snelweg op 500 meter tot 1000 meter Tramhalte op 500 meter tot 1000 meter Tramknooppunt op 500 meter tot 1000 meter |
| Energielabel | A+ |